ky体育(中国)官方网站是致力于打造绿色办公室ky体育(中国)官方网站,专注办公室ky体育(中国)官方网站设计的济南ky体育(中国)官方网站公司

济南办公室ky体育(中国)官方网站设计-济南ky体育(中国)官方网站公司-山东鲁工装饰设计有限公司

全国统一服务热线
0531-58763069



大家都在搜: 办公室ky体育(中国)官方网站 展厅ky体育(中国)官方网站 幼儿园ky体育(中国)官方网站 店铺ky体育(中国)官方网站 餐饮ky体育(中国)官方网站

列表页banner图
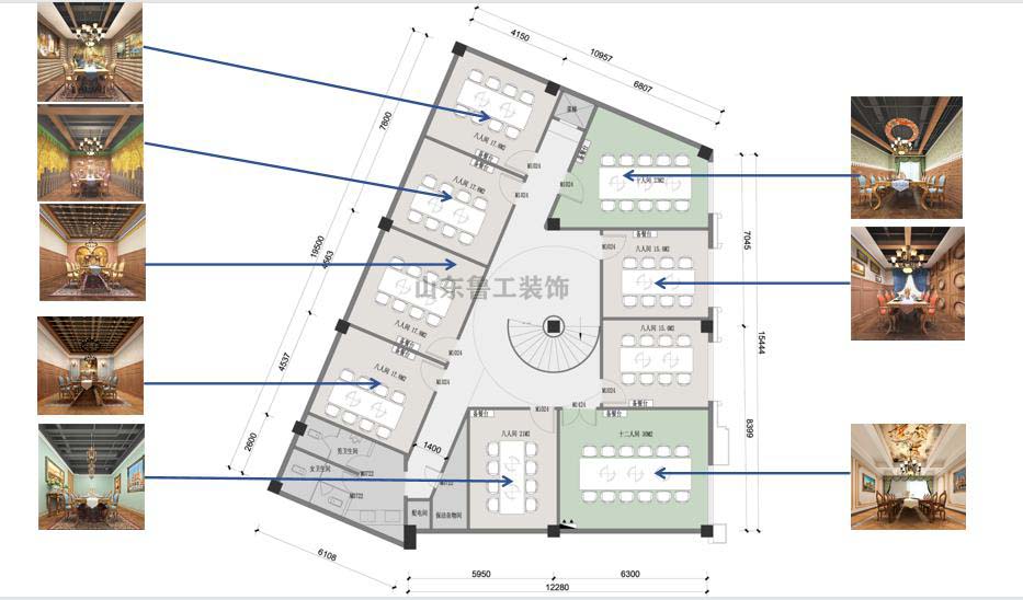
俄式餐厅-济南三孔桥店-500平餐饮ky体育(中国)官方网站
文章作者:山东鲁工装饰 上传更新:2021/10/28





















ky体育(中国)官方网站报价咨询
免费热线:
0531-58763069

电话:0531-58763069